Just Listed

Large family home on nearly 1 acre of useable land

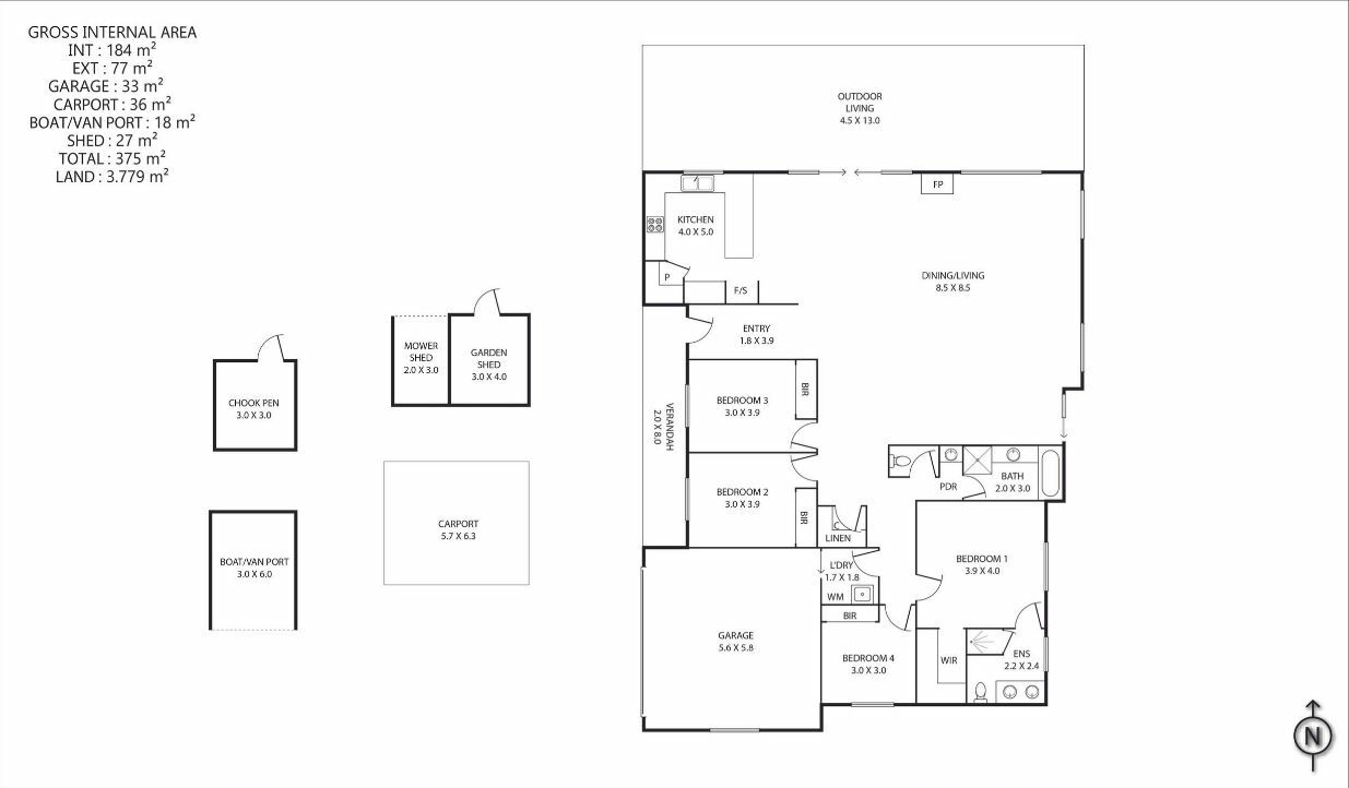
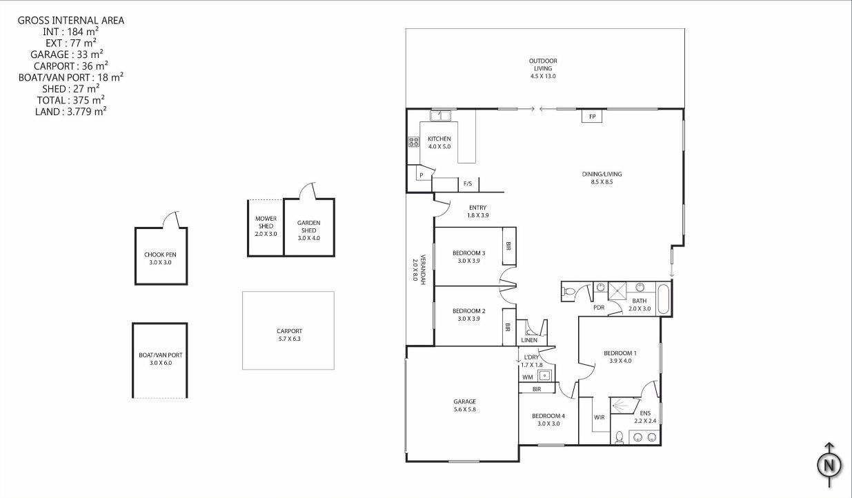
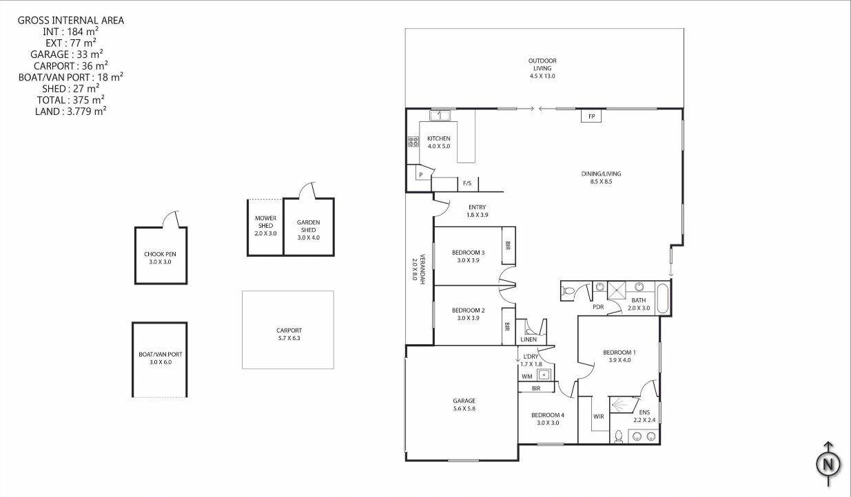
Welcome to 18 Quondong Court, Yandina. A large family home with enough room for all the families toys. Located in a sought after cul-da-sac where all the residents take pride and passion in maintaining their homes and gardens. Easy care north facing low-set brick home. The air-conditioned open-plan living, dining & kitchen open up onto the north facing verandah looking over the lush green grass & beyond to Eerwah Vale. Cozy pot-belly stove for the cooler weather. Easy care tiles throughout, carpet in the bedrooms.  Four built-in bedrooms the main with ensuite including Jack & Jill vanities, walk-in robe & brand new reverse cycle air-conditioning. Main bathroom has separate shower to bath and has been exceptionally maintained for it's age. Double remote garage with internal access plus a double carport beside the home make parking a breeze also a separate side access gate into the backyard making parking easy for the boat or caravan. If your heart desires to build a shed or install a swimming pool there's plenty of room with drive able access right into the back-yard. 

Yandina is located smack bang in the middle of the Sunshine Coast with easy access to the Bruce Highway North or South and 20 minutes from Coolum Beach. Easy walk to the CBD, famous Yandina Saturday markets & close proximity to the Sprit House cooking school & restaurant and an easy 5 minute walk to the Yandina Primary School. 

Features at a glance-

Fully fenced & useable 3799m2 walking distance to town

4 Built-in bedrooms the main with ensuite & walk-in robe

Open-plan living, kitchen & dining, Fans throughout, Security screens 

Brand new Mitsubishi reverse cycle air-conditioning in the living plus pot-belly for the cooler months

Stone bench-tops in kitchen, breakfast bar, pantry, 900mm gas cook-top & electric oven, dishwasher

5.5kw solar panels to keep those utility costs down, Gas hot water

North facing under-covered full length verandah

Immaculately maintained

Remote 2 bay garage with internal access plus a double carport beside the house

Side access into the backyard, Plenty of room to erect a shed or install a swimming pool

 

4 2 4 3,779 m2
Address 18 Quondong Court, Yandina
Price Price guide $1.4mill - $1.5mill
Property Type Residential
Property ID 1636
Category House
Land Area 3,779 m2
Floor Area 181 m2

Agent Details

Kate Henderson-Burton photo

Kate Henderson-Burton

0458 060 757
View Profile